Coniston House, Spinner Croft, Chesterfield

1 bedroom Flat for sale

£99,000

  • 1 bedroom
  • 2 bathroom
  • 1 reception

Key Features

  • GROUND FLOOR APARTMENT
  • POPULAR & CONVENIENT LOCATION
  • GOOD SIZED LOUNGE/DINER
  • FITTED KITCHEN WITH INTEGRATED COOKING APPLIANCES
  • GENEROUS DOUBLE BEDROOM WITH EN SUITE SHOWER ROOM
  • SEPARATE BATHROOM/WC
  • ALLOCATED PARKING SPACE
  • NO CHAIN
  • EPC RATING: C

Description

Summary

ONE BED GROUND FLOOR APARTMENT - TWO BATHROOMS - NO CHAIN - CONVENIENT LOCATION

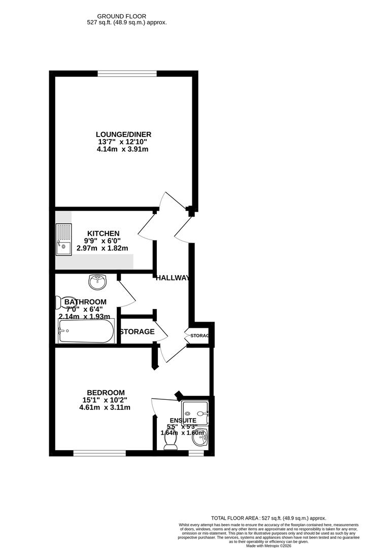
Situated on the outskirts of the Town Centre and offered for sale with no chain is this ground floor apartment which offers 527 sq.ft. of easily managed accommodation. The property features a good sized living room and a fitted kitchen with integrated cooking appliances. There is also a good sized double bedroom with en suite shower room, and a separate bathroom/WC, making it an ideal choice for individuals or couples seeking a modern living space. Outside, there is an allocated parking space.

The property is well placed for the local shops, restaurants and amenities offered on Derby Road and readily accessible for commuter links towards Dronfield, Sheffield and the M1 Motorway.

Whether you are looking to buy your first home or seeking an investment property, this apartment offers a wonderful opportunity to enjoy a contemporary lifestyle in a sought after location. Do not miss the chance to make this lovely apartment your own.

General

Electric heating
uPVC sealed unit double glazed windows
Gross internal floor area - 48.9 sq.m./527 sq.ft.
Council Tax Band - A
Tenure - Leasehold

A communal front entrance door with intercom entry opens to the ...

Ground Floor Communal Hallway

The front entrance door is to the right and opens into a ...

Entrance Hall

Having two built-in storage cupboards.

Lounge/Diner (4.14m x 3.66m)

A good sized front facing reception room having downlighting.

Kitchen (2.97m x 1.83m)

Fitted with a range of wall, drawer and base units with complementary work surfaces and upstands.
Inset single drainer stainless steel sink with mixer tap and tiled splashback.
Integrated appliances to include an electric oven and hob with glass splashback and extractor hood over.
Space and plumbing is provided for a washing machine, and there is also space for a fridge/freezer.
Tiled floor and downlighting.

Bathroom (2.13m x 1.93m)

Being part tiled and fitted with a white 3-piece suite comprising of a panelled bath, low flush WC and a semi recessed wash hand basin with work surface to either side and storage below.
Tiled floor and downlighting.

Bedroom (4.60m x 3.10m)

A good sized double bedroom. A door gives access to a ...

En Suite Shower Room (1.65m x 1.60m)

Fitted with a white 3-piece suite comprising of a fully tiled shower cubicle with mixer shower, pedestal wash hand basin with tiled splashback and a low flush WC.
Tiled floor and downlighting.

Outside

There is an allocated parking space.

Additional Information

The property is leasehold.

Lease Term - 155 years from 01/01/2006 to 01/01/2161.

Ground Rent Payable: £198.60 per annum.

Service Charge Payable: £898.80 every six months (£1793.60 per annum in total)


Location


Floorplan

Floorplan Floorplan Floorplan

EPC

EPC for Coniston House, Spinner Croft, Chesterfield

Chesterfield Estate Agent

23 Gluman Gate, Chesterfield S40 1TX

Similar Properties

Chatsworth Road, Brampton, Chesterfield
For Sale

Chatsworth Road, Brampton, Chesterfield

2 Bed Terraced House For Sale
Guide price OIRO £159,950
Fairfield Road, Chesterfield
For Sale

Fairfield Road, Chesterfield

3 Bed Detached house For Sale
Guide price OIRO £230,000
Springfield Avenue, Ashgate, Chesterfield
Sold STC

Springfield Avenue, Ashgate, Chesterfield

3 Bed Semi-detached house Sold STC
Guide price £280,000