Walton Crescent, Chesterfield

3 bedroom Semi-detached house for sale

£170,000

  • 3 bedroom
  • 1 bathroom
  • 1 reception

Key Features

  • DOUBLE FRONTED SEMI ON GENEROUS CORNER PLOT
  • DUAL ASPECT LIVING ROOM
  • KITCHEN WITH INTEGRATED COOKING APPLIANCES
  • REAR ENTRANCE HALL WITH WC & STORE ROOM OFF
  • THREE BEDROOMS
  • FAMILY BATHROOM
  • MATURE GARDENS TO THE FRONT AND SIDE
  • DETACHED SINGLE GARAGE & DRIVEWAY PARKING
  • NO CHAIN
  • EPC RATING: D

Description

Summary

THREE BED SEMI ON GENEROUS CORNER PLOT - NO CHAIN - GARAGE & DRIVEWAY

Occupying a generous corner plot is this double fronted semi detached house which would benefit from some cosmetic upgrading to create an ideal home for families or those seeking extra space. Offering 844 sq.ft. of accommodation, the property features a good sized dual aspect reception room, and a kitchen with integrated cooking appliances. There are also three bedrooms and a family bathroom. Outside, you will find mature lawned gardens to the front and side, a driveway providing off street parking, and a detached single garage.

Walton Crescent is an established neighbourhood, within close proximity to local amenities, schools, and parks, and readily accessible for transport links towards Chesterfield Town Centre and the M1 Motorway.

General

Gas central heating
uPVC sealed unit double glazed and single glazed windows
uPVC double glazed doors
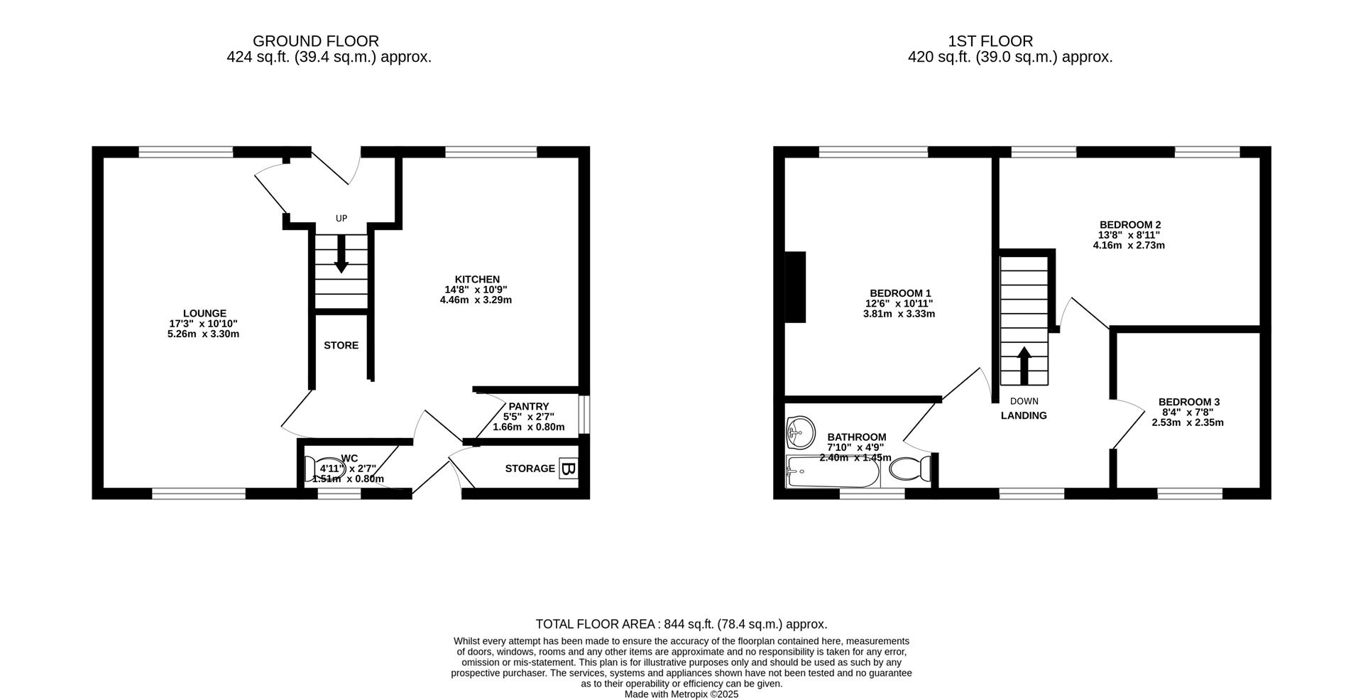
Gross internal floor area - 78.4 sq.m./844 sq.ft.
Council Tax Band - A
Tenure - Freehold
Secondary School Catchment Area - Parkside Community School

On the Ground Floor

A uPVC double glazed front entrance door opens into a ...

Entrance Hall

Withs staircase rising to the First Floor accommodation.

Living Room (5.26m x 3.05m)

A good sized dual aspect reception room having a wall mounted electric fire.

Kitchen (4.47m x 3.28m)

Being part tiled and fitted with a range of wall, drawer and base units with complementary work surfaces over.
Inset single drainer stainless steel sink with mixer tap.
Integrated appliances to include an electric oven and 4-ring gas hob with extractor hood over.
Space and plumbing is provided for a washing machine, and there is also space for an under counter fridge.
A door gives access to a useful built-in pantry.
Vinyl flooring.
A uPVC double glazed door gives access to a ...

Rear Entrance Hall

Having a door giving access to a useful store room which houses the gas boiler, and a door giving access to a WC.
A uPVC double glazed door gives access onto the rear of the property.

WC

With high flush WC.

On the First Floor

Landing

Bedroom One (3.81m x 3.33m)

A good sized front facing double bedroom having some built-in storage.

Bedroom Two (4.17m x 2.72m)

A good sized double bedroom having two windows overlooking the front of the property.

Bedroom Three (2.54m x 2.34m)

A front facing single bedroom.

Family Bathroom (2.39m x 1.45m)

Being part tiled and fitted with a white 3-piece suite comprising of a panelled bath with electric shower over, pedestal wash hand basin and a low flush WC.

Outside

The property sits on a corner plot, having lawned gardens to the front and side with mature planted beds and borders, and hedged boundaries.

There is also a driveway to the side providing off street parking.

To the rear of the property there is a Detached Single Garage and yard area.


Location


Floorplan

Floorplan Floorplan Floorplan

EPC

EPC for Walton Crescent, Chesterfield

Chesterfield Estate Agent

23 Gluman Gate, Chesterfield S40 1TX

Similar Properties

Malvern Road, Brockwell, Chesterfield
Sold STC

Malvern Road, Brockwell, Chesterfield

3 Bed Semi-detached house Sold STC
Guide price £385,000
Halesworth Close, Walton, Chesterfield
For Sale

Halesworth Close, Walton, Chesterfield

3 Bed Detached bungalow For Sale
Guide price £350,000
Easedale Close, Linacre Woods, Chesterfield
Sold STC

Easedale Close, Linacre Woods, Chesterfield

2 Bed Semi-detached house Sold STC
Guide price Guide Price £145,000