Lindale Road, Dunston, Chesterfield

2 bedroom Detached bungalow for sale

£230,000

  • 2 bedroom
  • 1 bathroom
  • 2 reception

Key Features

  • WELL APPOINTED DETACHED BUNGALOW
  • GOOD SIZED LIVING ROOM
  • SEPARATE DINING ROOM
  • RE-FITTED KITCHEN WITH INTEGRATED APPLIANCES
  • BRICK/UPVC DOUBLE GLAZED CONSERVATORY/UTILITY
  • TWO DOUBLE BEDROOMS
  • RE-FITTED SHOWER ROOM
  • DETACHED SINGLE GARAGE & DRIVEWAY PARKING
  • ENCLOSED SOUTH FACING REAR GARDEN
  • EPC RATING: D

Description

Summary

WELL APPOINTED DETACHED BUNGALOW - RE-FITTED KITCHEN & SHOWER ROOM - SOUTH FACING REAR GARDEN

Whether you are a first time buyer or looking to downsize, this well appointed detached bungalow on Lindale Road is sure to impress. Spanning an inviting 725 square feet, the property features two well proportioned reception rooms and two double bedrooms. The property also features a conservatory/utility, a re-fitted shower room and a stylish re-fitted kitchen with integrated appliances, making it an excellent choice for couples or small families. Outside, a driveway provides off street parking and there is an enclosed south facing rear garden and a detached single garage.

With its single-storey design, this property is particularly appealing for those seeking ease of access and low maintenance living.

Lindale Road is in an established neighbourhood, within easy reach of local amenities and Holmebrook Valley Park and readily accessible for transport links towards the Town Centre, Dronfield and Sheffield.

Don't miss the chance to make this lovely property your new home.

General

Gas central heating
uPVC sealed unit double glazed windows and doors
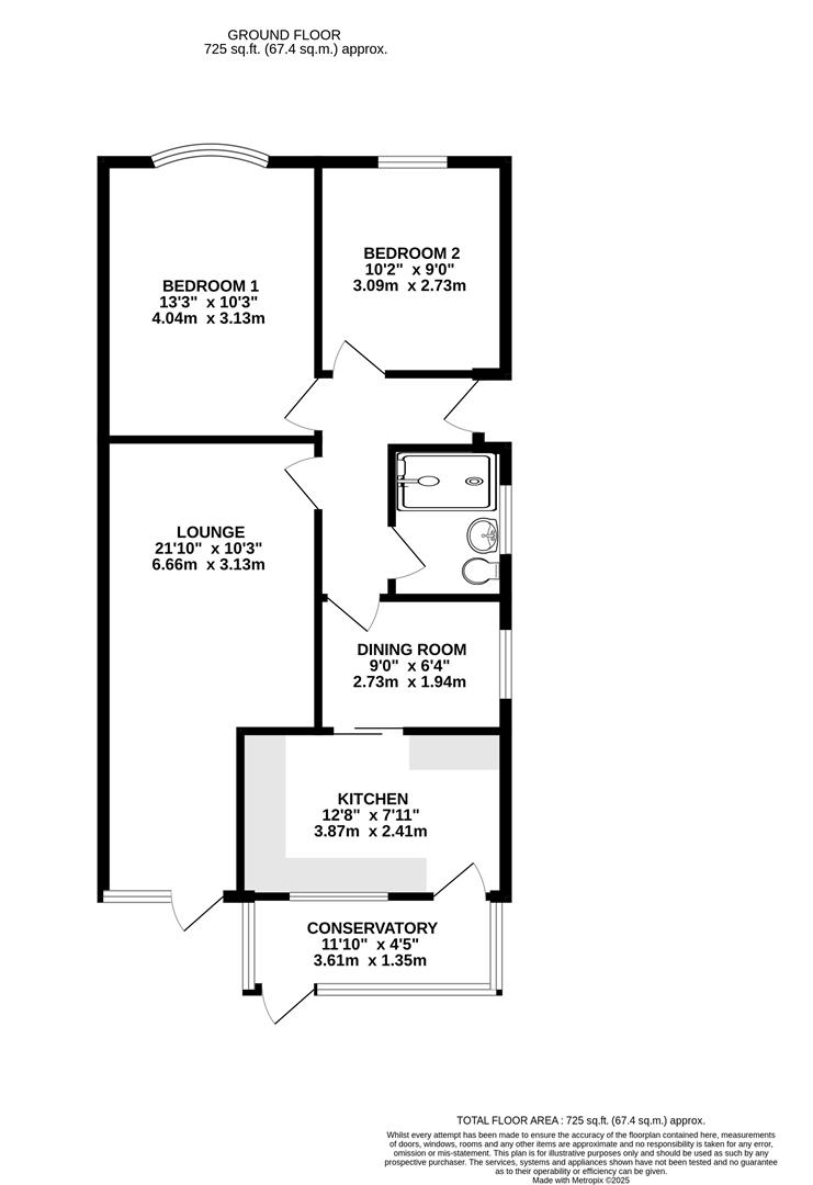
Gross internal floor area - 67.4 sq.m./725 sq.ft.
Council Tax Band - C
Tenure - Freehold
Secondary School Catchment Area - Outwood Academy Newbold

A uPVC double glazed side entrance door opens into an ...

'L' Shaped Entrance Hall

With loft access hatch.

Bedroom Two (3.10m x 2.74m)

A front facing double bedroom.

Bedroom One (4.04m x 3.12m)

A good sized double bedroom with bow window overlooking the front garden.

Living Room (6.65m x 3.12m)

A good sized reception room having a contemporary feature fireplace with inset pebble bed electric fire.
A uPVC double glazed door gives access onto the rear of the property.

Re-Fitted Shower Room

Having waterproof boarding to the walls, and fitted with a white 3-piece suite comprising of a walk-in shower enclosure with mixer shower, semi recessed wash hand basin with vanity unit below, and a concealed cistern WC.
Chrome heated towel rail.
Vinyl flooring.

Dining Room (2.74m x 1.93m)

A second reception room with side facing window and a glazed sliding door opening into the ...

Re-Fitted Kitchen (3.86m x 2.41m)

Being part tiled and fitted with a range of modern grey hi-gloss wall, drawer and base units with complementary work surfaces over.
Inset 1½ bowl single drainer stainless steel sink with mixer tap.
Integrated appliances to include a fridge, freezer, electric oven and 4-ring hob with stainless steel extractor hood over.
Chrome heated towel rail.
Vinyl flooring.

Brick/uPVC Double Glazed Conservatory (3.61m x 1.35m)

Having a tiled floor and space and plumbing for a washing machine. A uPVC double glazed door gives access onto the rear of the property.

Outside

To the front of the property there is a low maintenance garden with planted side borders. A concrete driveway provides off street parking.

To the rear of the property there is an enclosed south facing garden which comprises of a paved patio/seating area with steps leading down to a gated lawn which also has borders of plants, trees and shrubs, together with a garden shed and a greenhouse.

There is also restricted access to a Detached Single Garage having an 'up and over' door, light and power.


Location


Floorplan

Floorplan Floorplan Floorplan

EPC

EPC for Lindale Road, Dunston, Chesterfield

Chesterfield Estate Agent

23 Gluman Gate, Chesterfield S40 1TX

Similar Properties

Meadow Hill Road, Hasland, Chesterfield
For Sale

Meadow Hill Road, Hasland, Chesterfield

3 Bed Detached house For Sale
Guide price £279,950
Balmoak Lane, Tapton, Chesterfield
For Sale

Balmoak Lane, Tapton, Chesterfield

3 Bed Detached house For Sale
Guide price £465,000
Broomhill Road, Old Whittington
For Sale

Broomhill Road, Old Whittington

2 Bed Detached house For Sale
Guide price Guide Price £350,000