Wellington Street, New Whittington, Chesterfield

2 bedroom Terraced House Sold STC

£129,950

  • 2 bedroom
  • 1 bathroom
  • 2 reception

Key Features

  • WELL PROPORTIONED END TERRACED HOUSE
  • TWO RECEPTION ROOMS
  • USEFUL CELLAR
  • KITCHEN WITH CONSERVATORY OFF
  • TWO GOOD SIZED DOUBLE BEDROOMS
  • RE-FITTED FAMILY BATHROOM
  • ENCLOSED WEST FACING REAR GARDEN
  • CAR STANDING SPACE TO THE REAR
  • EPC RATING: E

Description

Summary

TWO BED END TERRACE - RE-FITTED BATHROOM - OFF STREET PARKING TO THE REAR

This delightful end terraced house on Wellington Street offers a perfect blend of comfort and convenience. Spanning an impressive 899 square feet, the property features two well proportioned reception rooms, providing ample space for both relaxation and entertaining. The property also boasts a kitchen with a conservatory off, and a useful cellar. With two double bedrooms and a re-fitted bathroom, this is a home that will attract a variety of buyers. Outside, there is an enclosed rear garden and off street parking.

Located in an established residential area, the property is well placed for accessing the local schools, parks and amenities, and is readily accessible for commuter links into Chesterfield Town Centre and towards Dronfield and Sheffield.

In summary, this property on Wellington Street is a wonderful choice for anyone seeking a comfortable home in New Whittington. Do not miss the opportunity to make this house your own.

General

Gas central heating
uPVC double glazed windows and doors (except front entrance door)
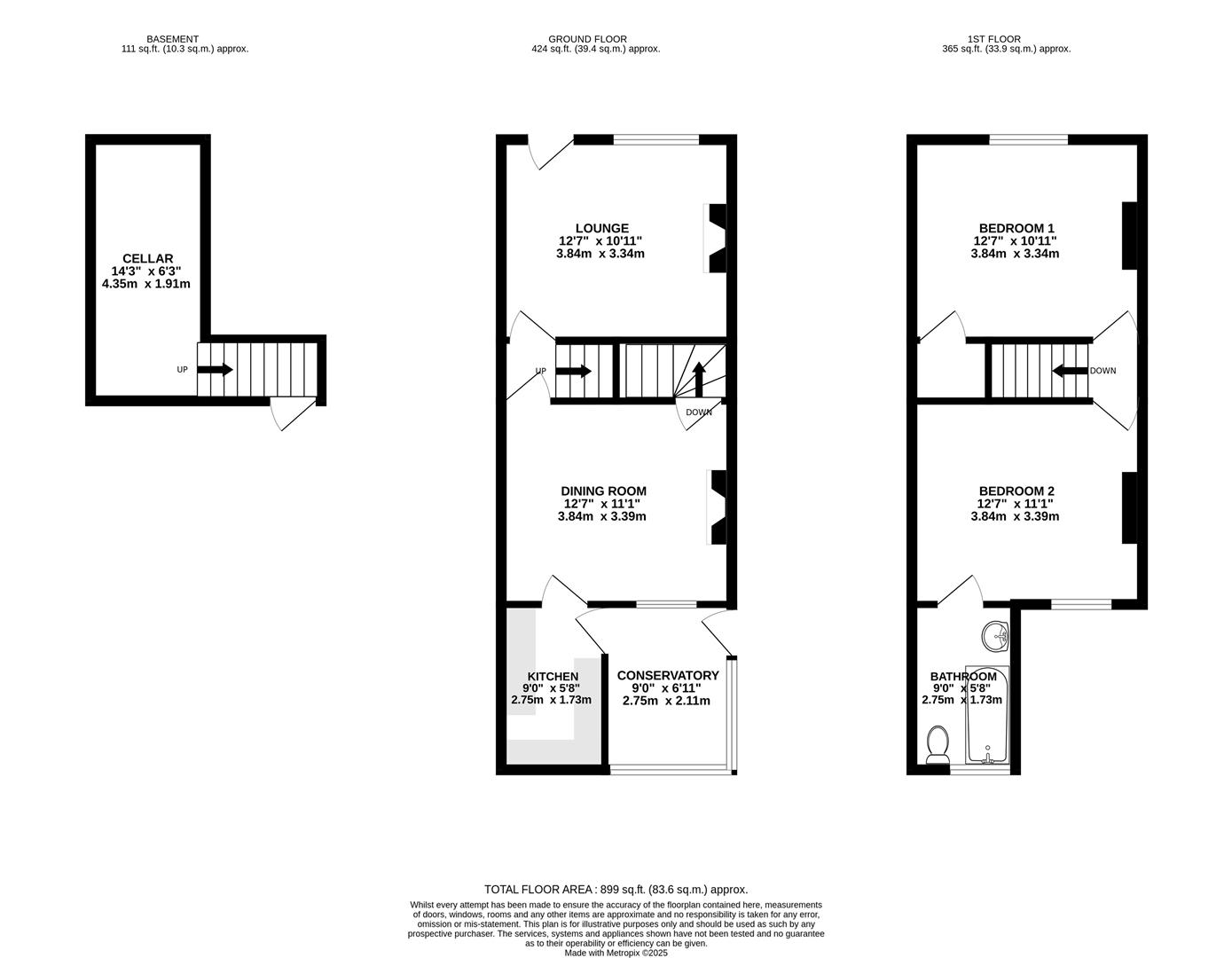
Gross internal floor area - 83.6 sq.m./899 sq.ft.
Council Tax Band - A
Tenure - Freehold
Secondary School Catchment Area - Whittington Green School

On the Ground Floor

A timber framed and glazed front entrance door opens into the ...

Living Room (3.84m x 3.33m)

A front facing reception room having a feature tiled fireplace with an inset electric fire.

Centre Lobby

With staircase rising to the First Floor accommodation.

Dining Room (3.84m x 3.38m)

A rear facing reception room having a feature fireplace with painted fire surround, marble inset and hearth and an inset living flame coal effect gas fire.
A door gives access to steps which lead down into the cellar.

Cellar (4.34m x 1.91m)

A useful storage area with light and power.

Kitchen (2.74m x 1.73m)

Being part tiled and fitted with a range of white wall, drawer and base units with complementary work surfaces over.
Inset single drainer stainless steel sink.
Space and plumbing is provided for a washing machine, and there is also space for an under counter fridge and a freestanding cooker.
Vinyl flooring.
A door from here gives access into the ...

uPVC Double Glazed Conservatory (2.74m x 2.11m)

Having a tiled floor and a uPVC double glazed door giving access onto the rear of the property.

On the First Floor

Bedroom One (3.84m x 3.33m)

A good sized front facing double bedroom having a built-in over stair storage cupboard.

Bedroom Two (3.84m x 3.38m)

A good sized rear facing double bedroom currently used as a music room/office.
Loft access hatch with pull down loft ladder to boarded roof space with lighting.
A door from here gives access into the ...

Re-Fitted Bathroom (2.74m x 1.73m)

Being part tiled and fitted with a white 3-piece suite comprising of a panelled bath with bath/shower mixer tap and an electric shower over, pedestal wash hand basin and a low flush WC.
Vinyl flooring.

Outside

There is a walled forecourt garden with plants and shrubs.

To the rear of the property there is an enclosed west facing garden which is paved and has a variety of plants and shrubs. Two steps lead up to a gate which opens to a car standing space, which is accessed from a rear service road.

There are also two brick built outbuildings, one of which is used for storage and the other has a WC and outside tap.


Location


Floorplan

Floorplan Floorplan Floorplan

EPC

EPC for Wellington Street, New Whittington, Chesterfield

Chesterfield Estate Agent

23 Gluman Gate, Chesterfield S40 1TX