Acorn Ridge, Walton, Chesterfield

4 bedroom Detached house Sold STC

£520,000

  • 4 bedroom
  • 2 bathroom
  • 3 reception

Key Features

  • SUPERB DETACHED FAMILY HOME
  • TWO COMFORTABLE RECEPTION ROOMS & GOOD SIZED HOME OFFICE
  • CONTEMPORARY DINING KITCHEN WITH INTEGRATED NEFF APPLIANCES
  • SEPARATE UTILITY ROOM & GROUND FLOOR CLOAKS/WC
  • FOUR WELL PROPORTIONED BEDROOMS
  • MODERN EN SUITE SHOWER ROOM & FAMILY BATHROOM
  • INTEGRAL SINGLE GARAGE & DRIVEWAY PARKING
  • ATTRACTIVE LANDSCAPED GARDENS TO THE FRONT AND REAR
  • BROOKFIELD SCHOOL CATCHMENT
  • EPC RATING: TBC

Description

Summary

SUPERB DETACHED FAMILY HOME - STYLISH ACCOMMODATION - SOUGHT AFTER LOCATION - NO CHAIN

Nestled in the charming area of Acorn Ridge, Walton, Chesterfield, this superb detached house offers a perfect blend of comfort and space for modern family living. Spanning an impressive 1,513 square feet, the property boasts two well appointed reception rooms, providing ample space for relaxation, entertainment, and family gatherings., and a good sized home office. The home also features a contemporary dining kitchen with integrated Neff appliances, together with a separate utility room and a ground floor cloaks/WC. The four generously sized bedrooms, ensures that everyone has their own private sanctuary. With two bathrooms, morning routines will be a breeze, accommodating the needs of a busy household with ease. Outside, the property benefits from an integral garage and driveway parking, and there are attractive landscaped gardens to both the front and rear.

The surrounding area is known for its friendly community and convenient access to local amenities, making it an ideal location for families and professionals alike.

This residence is not just a house; it is a place where memories can be made and cherished for years to come. If you are seeking a spacious family home in a desirable location, this property in Acorn Ridge is certainly worth considering.

General

Gas central heating (Worcester Greenstar Combi Boiler)
uPVC sealed unit double glazed windows and doors
Oak internal doors throughout
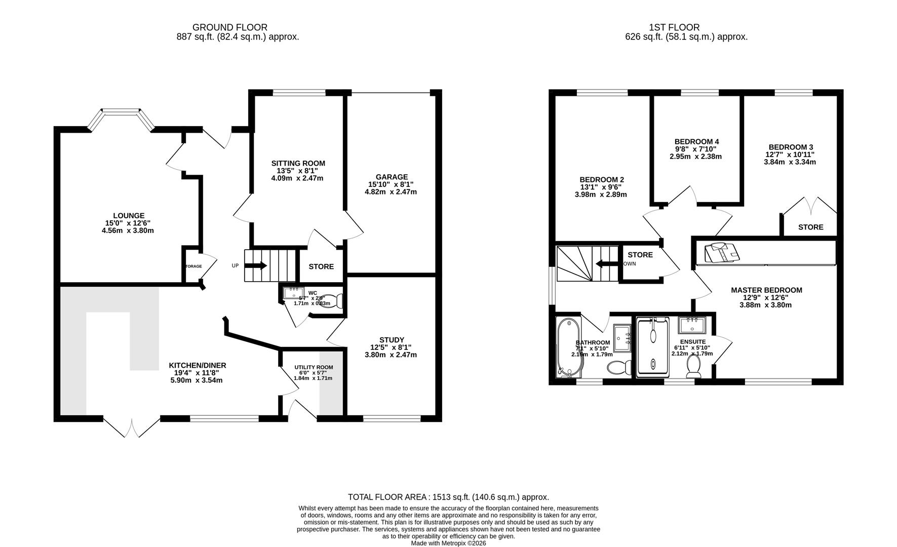
Gross internal floor area - 140.6 sq.m./1513 sq.m. (including Garage)
Council Tax Band - E
Tenure - Freehold
Secondary School Catchment Area - Brookfield Community School

On the Ground Floor

A uPVC double glazed front entrance door opens into a ...

Entrance Hall

Having a tiled floor and a built-in storage cupboard ideal for coats/shoes. With staircase rising to the First Floor accommodation.

Living Room (4.57m x 3.81m)

A spacious bay fronted reception room.

Sitting Room (4.09m x 2.46m)

A good sized front facing versatile room, fitted with engineered wood flooring and having a built-in under stair storage cupboard. A door gives access into the attached garage.

Dining Kitchen (5.89m x 3.56m)

Fitted with a contemporary range of two tone wall, drawer and base units with complementary quartz work surfaces and upstands, including a pull out larder unit.
Inset stainless sink with insinkerator, mixer tap and insinkerator boiling water tap.
Integrated Neff appliances to include a dishwasher, microwave oven with warming drawer below, electric fan oven and 5-ring induction hob.
The American style fridge/freezer is included in the sale.
Tiled floor, downlighting and pendant lighting.
Double patio doors overlook and open onto the rear garden.

Utility Room (1.83m x 1.70m)

Fitted with wall and base units with complementary worktop and upstands.
Inset single drainer stainless steel sink with mixer tap.
Space and plumbing is provided for a washing machine, and there is also space for a tumble dryer.
Vinyl flooring and downlighting.
A uPVC double glazed door gives access onto the rear patio.

Cloaks/WC

Fitted with a 2-piece white suite comprising of a low flush WC and wash hand basin with tiled splashback and vanity unit below.
Vinyl flooring.

Office/Study (3.78m x 2.46m)

A good sized home office, being rear facing and having a range of fitted units supplied by Nankivells. This room can comfortably accommodate two people working from home.

On the First Floor

Landing

Having a built-in linen cupboard which also houses the gas boiler.

Master Bedroom (3.89m x 3.81m)

A generous front facing double bedroom having a range of fitted wardrobes along one wall supplied by Nankivells.

En Suite Shower Room (2.11m x 1.78m)

Being fully tiled and fitted with a 3-piece suite comprising of a walk-in shower enclosure with mixer shower, wash hand basin with storage below, and a low flush WC.
Chrome heated towel rail.
Tiled floor and downlighting.

Bedroom Two (3.99m x 2.90m)

A good sized rear facing double bedroom.

Bedroom Three (3.84m x 3.33m)

A good sized rear facing double bedroom having a fitted wardrobe.

Bedroom Four (2.95m x 2.39m)

A good sized single/small double bedroom having a window overlooking the rear of the property.

Family Bathroom (2.16m x 1.78m)

Being fully tiled and fitted with a modern white 3-piece suite comprising of panelled bath with glass shower screen and mixer shower over, counter top wash hand basin with storage above and below, and a concealed cistern WC.
Chrome heated towel rail.
Tiled floor.

Outside

To the front of the property there is a tarmac driveway providing off street parking, leading to the Attached Single Garage. There is also a lawned garden with mature shrubs and an Indian Stone paved path leading up to the front entrance door and to a patio area. An EV charging point is provided.

The enclosed rear garden comprises of a porcelain tiled patio which was laid in August 2025, and a lawn with borders. There is also a composite deck seating area sat on a steel frame, a covered wooden pagoda and a barbeque area. There are several external power sockets, and string lighting is provided throughout the garden.


Location


Floorplan

Floorplan Floorplan Floorplan

EPC

EPC for Acorn Ridge, Walton, Chesterfield

Chesterfield Estate Agent

23 Gluman Gate, Chesterfield S40 1TX