Halton Close, Chesterfield

2 bedroom Detached bungalow for sale

£220,000

  • 2 bedroom
  • 1 bathroom
  • 2 reception

Key Features

  • DETACHED BUNGALOW ON ELEVATED PLOT IN CUL-DE-SAC POSITION
  • TWO RECEPTION ROOMS
  • GOOD SIZED KITCHEN
  • TWO DOUBLE BEDROOMS
  • SHOWER ROOM/WC
  • DRIVEWAY PARKING & GARDENS TO THE FRONT AND REAR
  • NO CHAIN
  • EPC RATING: D

Description

Summary

DETACHED TWO BED BUNGALOW ON ELEVATED PLOT - CUL-DE-SAC POSITION - NO CHAIN

Set in a quiet cul-de-sac and occupying an elevated plot, this attractive detached bungalow offers neutrally presented and well proportioned accommodation. The property features two double bedrooms, complemented by two versatile reception rooms ideal for both relaxing and entertaining. A good sized kitchen provides ample workspace and storage, while the shower room is neatly appointed.

Externally, the home benefits from driveway parking and mature, established gardens that offer a pleasant outdoor setting.

Offered to the market with no onward chain, the property is well placed for accessing the amenities in Newbold and Whittington Moor, and readily accessible for commuter links towards Chesterfield, Dronfield and Sheffield, making this is an excellent opportunity for those seeking a quiet yet convenient location.

General

Gas central heating
uPVC sealed unit double glazed widows and doors
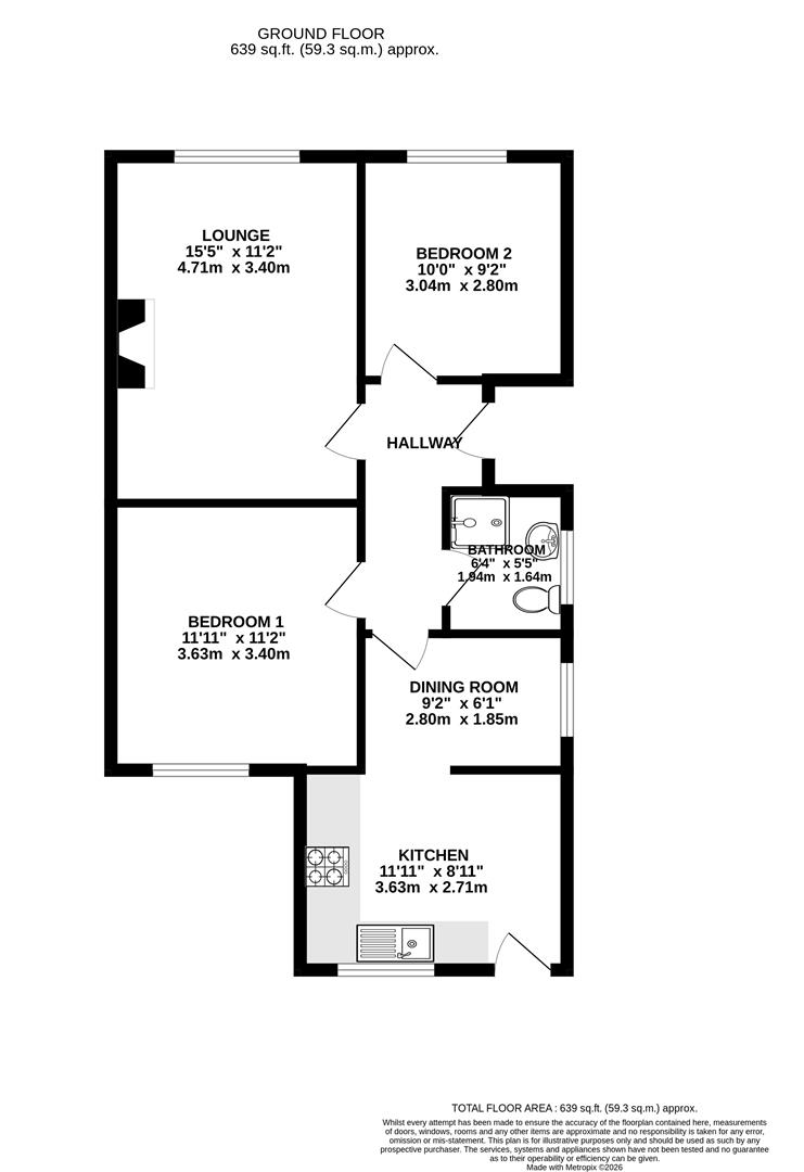
Gross internal floor area - 59.3 sq.m./639 sq.ft.
Council Tax Band - C
Tenure - Freehold
Secondary School Catchment Area - Whittington Green School

A uPVC double glazed front entrance door opens into a ...

'L' Shaped Side Entrance Hall

Bedroom Two (3.05m x 2.79m)

A front facing double bedroom.

Living Room (4.70m x 3.40m)

A generous front facing reception room having a feature fireplace with wood surround, marble inset and hearth, and a fitted gas fire.

Bedroom One (3.63m x 3.40m)

A good sized rear facing double bedroom.

Shower Room (1.93m x 1.65m)

Being part tiled and fitted with a 3-piece suite comprising a shower cubicle with mixer shower, pedestal hand wash basin and a low flush WC.
Built-in airing cupboard.
Vertical heated towel rail.

Dining Room (2.79m x 1.85m)

A side facing reception room. An opening leads through into the ...

Kitchen (3.63m x 2.72m)

Being part tiled and fitted with a range of wall, drawer and base units with complementary work surfaces over.
Inset 1½ bowl single drainer stainless steel sink with mixer tap.
Space and plumbing is provided for a washing machine, and there is space for a fridge/freezer and a freestanding cooker having a fitted extractor over.
Wood flooring.
A uPVC double glazed door gives access onto the rear of the property.

Outside

To the front of the property there is a tarmac driveway providing off street parking. There is also a well stocked garden of plants and shrubs.

To the rear of the property there is a yard area with a summerhouse. Steps rise up to a paved patio where there is a hardstanding area for a garden shed. There is also a lawned garden with a paved path which leads up to a raised planted bed at the top of the garden.


Location


Floorplan

Floorplan Floorplan Floorplan

EPC

EPC for Halton Close, Chesterfield

Chesterfield Estate Agent

23 Gluman Gate, Chesterfield S40 1TX

Similar Properties

Hady Hill, Hady, Chesterfield
For Sale

Hady Hill, Hady, Chesterfield

4 Bed Detached bungalow For Sale
Guide price £550,000
Balmoak Lane, Tapton, Chesterfield
For Sale

Balmoak Lane, Tapton, Chesterfield

2 Bed Detached bungalow For Sale
Guide price OIRO £350,000
Nelson Street, Whittington Moor, Chesterfield
For Sale

Nelson Street, Whittington Moor, Chesterfield

2 Bed Terraced House For Sale
Guide price £135,000