Gas central heating (Worcester Bosch Combi Boiler)
Mixture of uPVC and timber framed sealed unit double glazed and single glazed windows
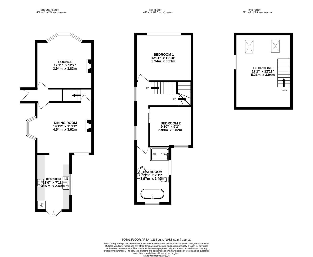
Gross internal floor area - 103.5 sq.m./1114 sq.ft.
Council Tax Band - B
Tenure - Freehold
Secondary School Catchment Area - Brookfield Community School
A composite side entrance door with original stained glass pane opens into a ...
Having an under stair storage area suitable for coats/shoes.
A good sized bay fronted reception room having an inset gas real flame fire with a stone surround.
Solid oak flooring.
Original coving and picture rail.
A second good sized reception room, being dual aspect and having a bay window overlooking the side garden.
This room has a feature fireplace with Robeys multi-fuel stove.
Solid oak flooring, picture rail, downlighting and pendant lighting.
A door gives access to the staircase which rises to the First Floor accommodation.
An opening leads through into the ...
A dual aspect room, designed and re-fitted in January 2025 by Oti Interiors. 
Fitted with a range of grey wall, drawer and base units with complementary quartz work surfaces and upstands, including a breakfast cupboard.
Inset sink with Qooker 3-in-1 boiling water tap.
Integrated appliances to include a fridge/freezer, slimline dishwasher, washing machine, Neff electric oven and hob with extractor over.
Cupboard housing the gas boiler.
Engineered oak flooring with under floor heating, and downlighting.
uPVC double glazed French doors overlook and open onto the rear of the property.
With staircase rising to the Second Floor accommodation.
A good sized front facing double bedroom having a picture rail and some under stair storage.
Accessed via sliding doors from the landing, a rear facing double bedroom, currently used as a dressing room.
A spacious dual aspect room, fitted with a white 4-piece suite comprising of a fully tiled walk-in shower enclosure with mixer shower, freestanding bath with centre mixer tap, wash hand basin with tiled splashback and low flush WC.
Two chrome heated towel rails.
Tiled floor with underfloor heating, and downlighting.
A good sized double bedroom, which would also make an ideal work from home space, having a gable end window and two Velux windows.
This room also has plumbing for an en suite.
Two eaves access panels.
Oak flooring.
Double gates to the front of the property open onto a block paved drive providing off street parking.  There is also a low level walled and hedged forecourt garden 
To the rear and side of the property there are attractive landscaped gardens which consist of a paved patio, low level box hedging with plants, shrubs and trees, and a raised deck seating area.  A deck walkway leads to an artificial lawn with mature, well stocked borders.  The garden has been designed by Bestall & Co. Landscape Design Ltd.
 
                              
                              
                          
        