Tom Lane, Duckmanton, Chesterfield

0 bedroom Property for sale

£100,000

Key Features

  • FORMER CHURCH BUILDING AND SEPARATE OFFICE BUILDING
  • 0.26 ACRE PLOT IN ELEVATED POSITION
  • POTENTIAL TO RE-PURPOSE OR DEVELOP (Subject to consents)
  • PLANNING CONSULTANTS THOUGHTS AVAILABLE
  • SUGGESTED MIXED COMMERCIAL & RESIDENTIAL SCHEME
  • CONVENIENT LOCATION, CLOSE TO THE M1 JUNCTION 29A
  • NO CHAIN - FREEHOLD SALE

Description

Summary

GUIDE PRICE £100,000 TO £125,000 - FORMER CHURCH BUILDING AND SEPARATE OFFICE ON 0.26 ACRE PLOT OFFERING SOME SCOPE FOR POSSIBLE RESIDENTIAL OR COMMERCIAL DEVELOPMENT

We are inviting either unconditional and conditional offers subject to satisfactory planning consent for this large single storey building used previously as a church and separate office building on a large plot that may offer some scope for development subject to consents.

Whilst there has been no formal communication with the Local Authority, it is felt that the land could offer some scope for development subject to consents and approvals. A local planning consultant has offered some advice which can be made available upon request.

General

Gas heaters installed
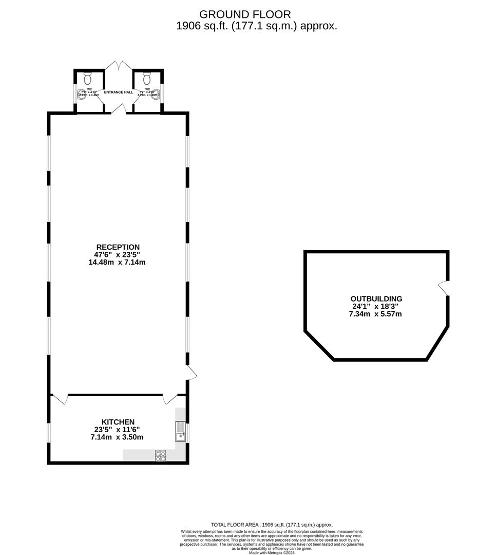
Gross internal floor area - 177 sq.m. / 1906 sq.ft. for both buildings
Council Tax Band - N/A
Tenure - Freehold
School Catchment - The Bolsover School

Development Potential

No formal enquiries have been made with the Local Authority and we are therefore unable to offer any specific advice on the likelihood of development being approved.
A local planning consultant has looked at the site and believes a mixed commercial and residential scheme could be successful. Details can be supplied upon request.
We are inviting unconditional offers but also will consider offers subject to satisfactory planning consent being obtained. Such conditional offers would usually mean that the buyer submits their own application under the terms of an agreed contract.

Buildings

The buildings have been unused for some time and we are unable to confirm serviceability of any fittings or services.
We believe the buildings may contain an element of asbestos, although a full asbestos survey has not been conducted.

Main Church Building

Double doors open to give access to an ...

Entrance Vestibule

Having doors to ...

Cloaks/WC 1

Fitted with a white 2-piece suite comprising a hand wash basin with electric water heater over, and a low flush WC.

Cloaks/WC 2

Fitted with a white 2-piece suite comprising a hand wash basin with electric water over, and a low flush WC.

Hall (14.48m x 7.14m)

A large open plan space.

Kitchen (7.14m x 3.51m)

A dual aspect room, being part tiled and fitted with a range of wall, drawer and base units with work surfaces over.
Inset 1½ bowl single drainer stainless steel sink with mixer tap, and separate stainless steel circular sink with mixer tap.
Integrated electric oven and 5-ring gas hob with extractor hood over.
Vinyl and carpet flooring.

Outside

The property occupies an elevated position and comprises a car park and a separate detached building previously used as an office (24'1 x 18'3).
There are store rooms and toilets to the rear of the main building accessed externally.


Location


Floorplan

Floorplan Floorplan Floorplan

EPC


Chesterfield Estate Agent

23 Gluman Gate, Chesterfield S40 1TX

Similar Properties

Ridgeway Avenue, Bolsover, Chesterfield
For Sale

Ridgeway Avenue, Bolsover, Chesterfield

2 Bed Semi-detached house For Sale
Guide price £169,995
Heath Road, Heath, Chesterfield
For Sale

Heath Road, Heath, Chesterfield

2 Bed Detached bungalow For Sale
Guide price OIRO £485,000
Laburnum Close, Bolsover, Chesterfield
Sold STC

Laburnum Close, Bolsover, Chesterfield

2 Bed Detached house Sold STC
Guide price OIRO £220,000