Dale View Close, Lower Pilsley, Chesterfield

3 bedroom Detached house for sale

£245,000

  • 3 bedroom
  • 1 bathroom
  • 1 reception

Key Features

  • WELL APPOINTED DETACHED FAMILY HOME
  • GOOD SIZED LIVING ROOM
  • MODERN KITCHEN/DINER WITH FRENCH DOORS OPENING TO THE REAR GARDEN
  • THREE BEDROOMS
  • MODERN FAMILY BATHROOM
  • COVERED CAR PORT & DRIVEWAY PARKING
  • ENCLOSED SOUTH EAST FACING REAR GARDEN
  • CUL-DE-SAC POSITION
  • EPC RATING: D

Description

Summary

WELL APPOINTED DETACHED FAMILY HOME - MODERN KITCHEN & BATHROOM - CUL-DE-SAC POSITION - SOUTH EAST FACING REAR GARDEN

Located in a popular cul-de-sac is this well appointed detached family home which offers a perfect blend of comfort and convenience. Upon entering the property you are welcomed into a good sized living room, which leads through to a modern kitchen/diner with integrated cooking appliances and French doors opening to the rear garden. The property also features three bedrooms and a modern family bathroom, making this an ideal property for a variety of buyers.

Benefitting from off street parking and a covered car port, the property is just a short distance from open countryside and walks, and is readily accessible for transport links into the Town Centre, Clay Cross and towards the M1 Motorway.

With its appealing features and prime location, this detached house on Dale View Close is a wonderful opportunity for anyone looking to settle in a friendly and accessible area. Do not miss the chance to make this lovely property your new home.

General

Gas central heating (Ideal Vogue Max Combi Boiler)
uPVC sealed unit double glazed windows and doors
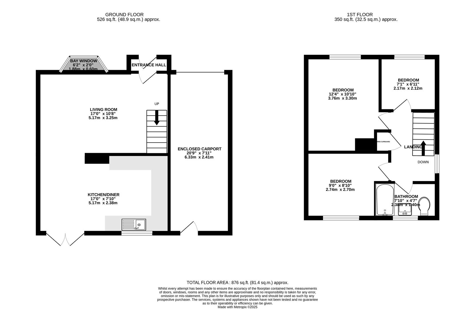
Gross internal floor area - 81.4 sq.m./876 sq.ft. (including Car Port)
Council Tax Band - C
Tenure - Freehold
Secondary School Catchment Area - Tupton Hall School

On the Ground Floor

A uPVC double glazed front entrance door opens into an ...

Entrance Porch

Fitted with laminate flooring. A further door opens into the ...

Living Room (5.18m x 3.25m)

A good sized bay fronted reception room with open balustrade staircase rising to the First Floor accommodation.
An opening leads through into the ...

Kitchen/Diner (5.18m x 2.39m)

Being part tiled and fitted with a modern range of white hi-gloss wall, drawer and base units with complementary work surfaces over.
Inset single drainer stainless steel sink with mixer tap.
Integrated appliances to include an eye level electric oven and hob with extractor canopy over.
Space and plumbing is provided for a washing machine, and there is also space for a fridge/freezer.
Laminate flooring to the kitchen area.
uPVC double glazed French doors overlook and open onto the rear of the property.

On the First Floor

Landing

Having a built-in storage cupboard housing the gas boiler.

Bedroom One (3.76m x 3.30m)

A good sized front facing double bedroom.

Bedroom Two (2.74m x 2.69m)

A rear facing double bedroom.

Bedroom Three (2.16m x 2.11m)

A front facing single bedroom.

Family Bathroom

Being fully tiled and fitted with a modern white 3-piece suite comprising of a panelled bath with glass shower screen and mixer shower over, wash hand basin with storage below, and a low flush WC.
Chrome heated towel rail.
Vinyl flooring.

Outside

To the front of the property there is a driveway providing off street parking, leading to a covered Car Port which has a garage door and a rear personnel door. There is also a small awned garden.

To the rear of the property there is an enclosed south east facing garden which comprises of a paved patio and a lawn with path. At the top of the garden there are two hardstanding areas which could be used as additional seating areas or for garden sheds. l


Location


Floorplan

Floorplan Floorplan Floorplan

EPC

EPC for Dale View Close, Lower Pilsley, Chesterfield

Chesterfield Estate Agent

23 Gluman Gate, Chesterfield S40 1TX

Similar Properties

Hall Terrace, Clay Cross, Chesterfield
For Sale

Hall Terrace, Clay Cross, Chesterfield

3 Bed Terraced House For Sale
Guide price OIRO £175,000
Malthouse Lane, Ashover, Chesterfield
Sold STC

Malthouse Lane, Ashover, Chesterfield

3 Bed Semi-detached house Sold STC
Guide price £260,000
Penncroft Lane, Danesmoor, Chesterfield
For Sale

Penncroft Lane, Danesmoor, Chesterfield

3 Bed Semi-detached house For Sale
Guide price £45,000