Dale Crescent, New Tupton, Chesterfield

2 bedroom Semi-detached house for sale

£195,000

  • 2 bedroom
  • 1 bathroom
  • 1 reception

Key Features

  • SEMI DETACHED HOUSE ON CORNER PLOT
  • SPACIOUS DUAL ASPECT LIVING/DINING ROOM
  • BREAKFAST KITCHEN WITH INTEGRATED COOKING APPLIANCES
  • TWO BEDROOMS
  • SHOWER ROOM/WC
  • SINGLE GARAGE & DRIVEWAY PARKING
  • GOOD SIZED SOUTH FACING REAR GARDEN
  • EPC RATING: TBC

Description

Summary

TWO BED SEMI ON CORNER PLOT - CUL-DE-SAC POSITION - GARAGE - SOUTH FACING REAR GARDEN

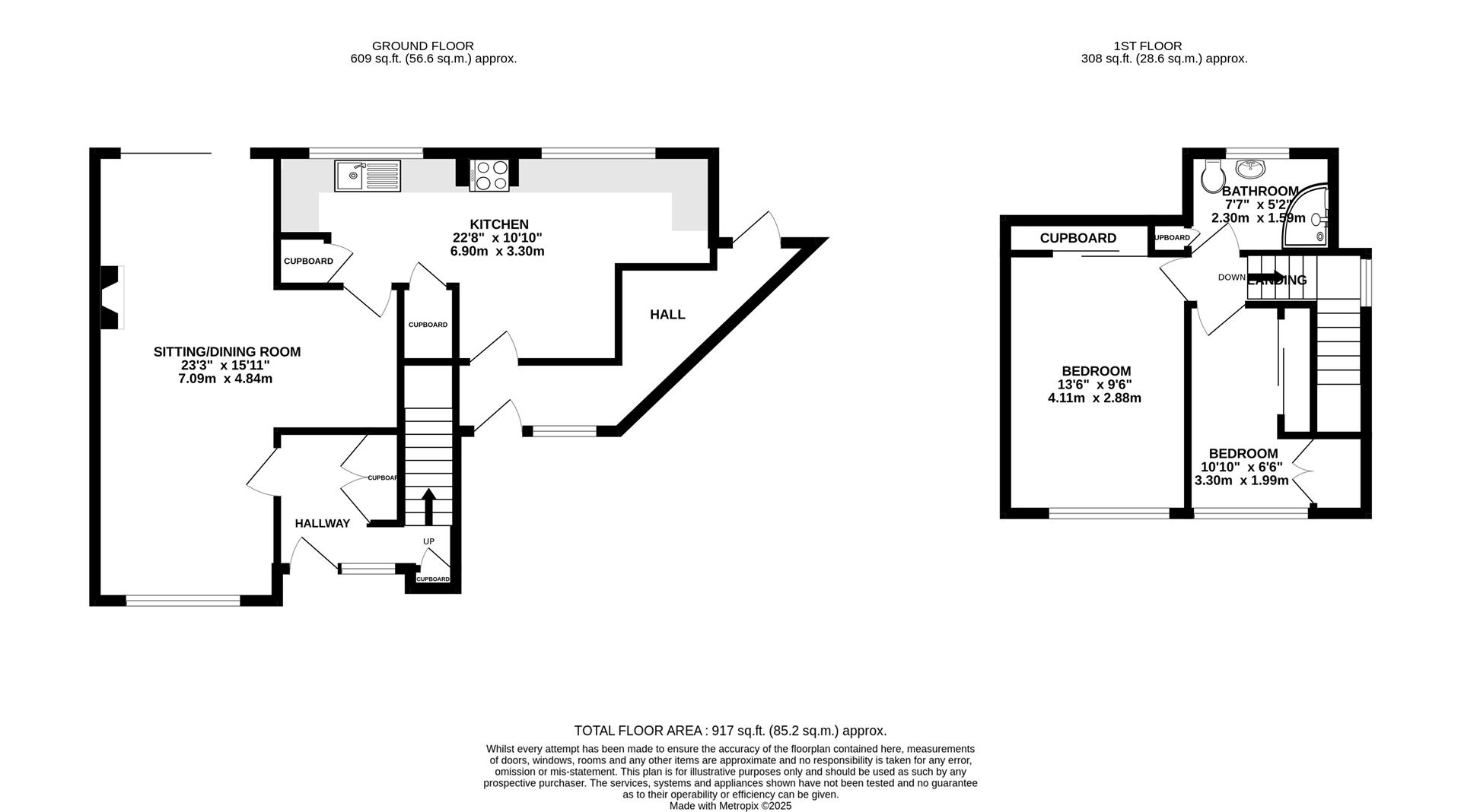
Sitting at the head of a cul-de-sac on a corner plot is this delightful two bedroomed semi detached house which offers 917 sq.ft. of neutrally presented accommodation. Upon entering the property, a door from the entrance hall opens to a spacious 23 Ft long living/dining room with sliding patio doors opening to an enclosed south facing rear garden. The property also features a good sized breakfast kitchen and a shower room. A single garage and driveway parking complete the property.

Located in a popular and established residential area, the property is well placed for accessing the various amenities in New Tupton and for routes into Clay Cross and Chesterfield Town Centre.

General

Gas central heating (Combi Boiler)
uPVC sealed unit double glazed windows and doors
Gross internal floor area - 85.2 sq.m./917 sq.ft.
Council Tax Band - B
Tenure - Freehold
Secondary School Catchment Area - Tupton Hall School

On the Ground Floor

Storm Porch

Having a uPVC double glazed door with matching double glazed side panel opening into a ...

Entrance Hall

Having two built-in storage cupboards. A staircase rises to the First Floor accommodation.

Sitting/Dining Room (7.09m x 4.85m)

A spacious dual aspect reception room with uPVC double glazed sliding patio door overlooking and opening onto the rear of the property.
This room also has a feature fireplace with an inset coal effect electric fire.

Breakfast Kitchen (6.91m x 3.30m)

A good sized kitchen with two windows overlooking the rear of the property. Being part tiled and fitted with a range of wall, drawer and base units with complementary work surfaces over.
Inset 1½ bowl single drainer stainless steel sink with mixer tap.
Integrated appliances to include a freezer, electric double oven and 4-ring gas hob with concealed extractor over.
Space and plumbing is provided for a washing machine and a dishwasher, and there is also space for a fridge/freezer.
Two built-in storage cupboards.
Vinyl flooring and downlighting.
A door gives access to a ...

Side Entrance Hall

Having two uPVC double glazed doors giving access to the front and rear of the property.

On the First Floor

Landing

Bedroom One (4.11m x 2.90m)

A good sized front facing double bedroom having downlighting and built-in storage with sliding doors.

Bedroom Two (3.30m x 1.98m)

A front facing single bedroom with downlighting, having a fitted wardrobe with sliding doors and a built-in storage cupboard.

Shower Room (2.31m x 1.57m)

Being fully tiled and fitted with a white 3-piece suite comprising of a corner shower cubicle with mixer shower, semi recessed wash hand basin with vanity unit below, and a concealed cistern WC.
Chrome heated towel rail.
Downlighting.

Outside

To the front of the property there is a driveway providing off street parking, which leads up to an Attached Single Garage.

To the rear of the property there is a south facing garden, which is predominantly laid to lawn and having mature planted beds, borders and trees. There is also three seating areas, a greenhouse, and a garden shed (10'0 x 8'0) with light and power.


Location


Floorplan

Floorplan Floorplan Floorplan

EPC

EPC for Dale Crescent, New Tupton, Chesterfield

Chesterfield Estate Agent

23 Gluman Gate, Chesterfield S40 1TX

Similar Properties

Harewood Crescent, Old Tupton, Chesterfield
For Sale

Harewood Crescent, Old Tupton, Chesterfield

3 Bed Detached bungalow For Sale
Guide price OIRO £425,000
New Road, Wingerworth, Chesterfield
For Sale

New Road, Wingerworth, Chesterfield

4 Bed Detached house For Sale
Guide price £400,000
Adlington Avenue, Wingerworth, Chesterfield
For Sale

Adlington Avenue, Wingerworth, Chesterfield

3 Bed Semi-detached house For Sale
Guide price OIRO £169,950