Station New Road, Old Tupton, Chesterfield

2 bedroom Detached bungalow for sale

£315,000

  • 2 bedroom
  • 2 bathroom
  • 1 reception

Key Features

  • PLOT 2 - NEW BUILD DETACHED BUNGALOW IN SECLUDED POSITION
  • RESERVE FOR JUST £500 - ENERGY EFFICIENT WITH SOLAR PANELS
  • TWO GOOD SIZED DOUBLE BEDROOMS
  • FAMILY BATHROOM AND STYLISH EN-SUITE SHOWER ROOM
  • AN INVITING ENTRANCE HALL
  • FANTASTIC OPEN PLAN LIVING KITCHEN WITH UTILITY ROOM OFF
  • FULLY INTEGRATED KITCHEN WITH DISHWASHER, FRIDGE, FREEZER, OVEN AND HOB
  • OFF STREET PARKING
  • LANDSCAPED GARDENS
  • NEW BUILD WARRANTY

Description

Summary

PLOT 2 - NEW BUILD DETACHED BUNGALOW - ENERGY EFFICIENT WITH SOLAR FITTED - RESERVE FOR £500

Nestled just off Station New Road, Old Tupton, this exquisite new build bungalow offers a perfect blend of modern living and comfort. With completion in early 2026, this detached property boasts two well-proportioned bedrooms and two stylish bathrooms, making it an ideal choice for couples, small families, or those seeking a peaceful retirement retreat.

The bungalow is designed with energy efficiency in mind, ensuring that you can enjoy a warm and inviting home while keeping your energy costs low. The superb layout includes a spacious reception room that provides a welcoming atmosphere. The secluded position of the property enhances its appeal, offering a sense of privacy and tranquillity.

With the opportunity to reserve this stunning bungalow for just £500, now is the perfect time to secure your dream home in this desirable location.

General

Gas central heating
uPVC sealed unit double glazed windows and doors
Solar panels
Gross internal floor area - 893 sq. ft.
Council Tax Band - TBC
Tenure - Freehold
Secondary School Catchment Area - Tupton Hall School
10 Year CML approved new build Warranty

Storm Porch

A front door opens into a ...

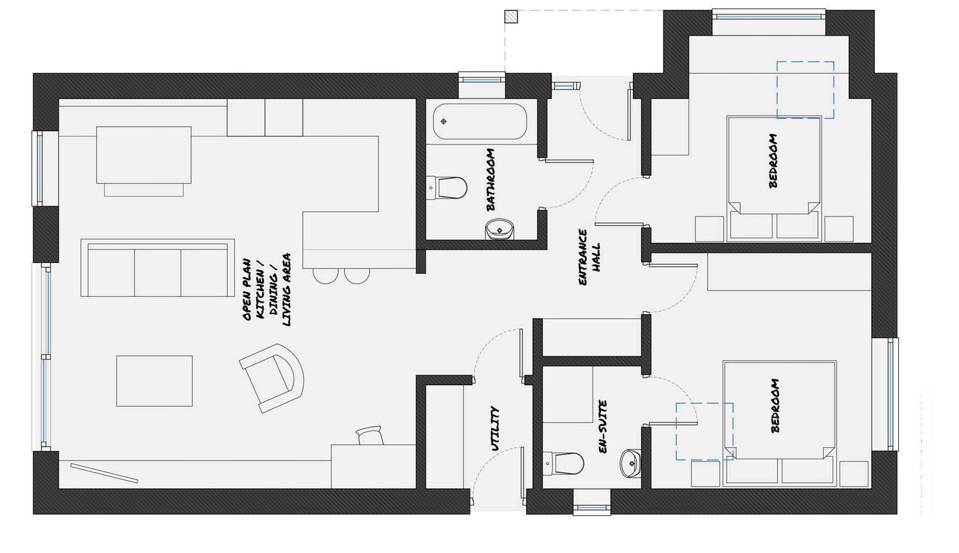
Entrance Hall

A pleasant entrance hall with storage space.

Bedroom Two

A good sized front facing double bedroom with Velux window.

Master Bedroom

A good sized rear facing double bedroom with Velux window and window overlooking the rear garden. An opening leads through into a ...

En Suite Shower Room

Fitted with a white 3-piece suite comprising of a shower cubicle with mixer shower, wash hand basin and a low flush WC.

Family Bathroom

Fitted with a white 3-piece suite comprising of a panelled bath, wash hand basin and a low flush WC.

Utility Room

With units and space for a washer and dryer. A door leads out to the side of the property.

Open Plan Kitchen/Dining/Living Room

Fitted with a range of contemporary wall, drawer and base units with complementary work surfaces over.
Inset single drainer sink with mixer tap.
Integrated appliances to include a dishwasher, fridge/freezer, electric oven and hob with extractor over.
Patio doors overlook and open onto the rear of the property.

Outside

There is a driveway providing off street parking to the front and an enclosed garden to the rear with patio, turfed lawn and fencing.


Location


Floorplan

Floorplan Floorplan

EPC


Chesterfield Estate Agent

23 Gluman Gate, Chesterfield S40 1TX

Similar Properties

Ashover Road, Old Tupton, Chesterfield
For Sale

Ashover Road, Old Tupton, Chesterfield

3 Bed Detached house For Sale
Guide price £375,000
Sandstone Avenue, Walton, Chesterfield
Sold STC

Sandstone Avenue, Walton, Chesterfield

4 Bed Detached house Sold STC
Guide price £385,000
Kingswood Park, Wingerworth, Chesterfield
Sold STC

Kingswood Park, Wingerworth, Chesterfield

3 Bed Detached bungalow Sold STC
Guide price £490,000