Church Street, Staveley, Chesterfield

2 bedroom Terraced House Sold STC

£145,000

  • 2 bedroom
  • 1 bathroom
  • 2 reception

Key Features

  • END TERRACED HOUSE LOCATED IN THE CENTRE OF STAVELEY
  • REQUIRING SOME COSMETIC UPGRADING/REFURBISHMENT
  • TWO GOOD SIZED RECEPTION ROOMS
  • KITCHEN WITH FRENCH DOORS OPENING ONTO THE REAR OF THE PROPERTY
  • TWO GOOD SIZED BEDROOMS
  • BATHROOM/WC
  • ENCLOSED SOUTH FACING REAR GARDEN
  • NO UPWARD CHAIN
  • WITHIN STAVELEY CONSERVATION AREA
  • EPC RATING: D

Description

Summary

TWO BED END TERRACE HOUSE - CONVENIENT LOCATION - SOUTH FACING REAR GARDEN - NO CHAIN

Located in the centre of Staveley and within Staveley Conservation Area is this delightful end terraced house which is offered for sale with no chain. Requiring some cosmetic upgrading/refurbishment the property offers 881 sq.ft. of well proportioned and neutrally presented accommodation including two good sized reception rooms and a dual aspect kitchen with French doors opening onto the south facing rear garden. The property also features two comfortable bedrooms, the master bedroom having a range of built-in wardrobes, and there is also a bathroom/WC.

The layout of the house is both functional and inviting, making it an ideal choice for first-time buyers, small families, or those looking to downsize.

The location is particularly appealing, with easy access to local amenities and transport links, making it a convenient base for commuting or exploring the surrounding areas. The vibrant community of Staveley offers a range of shops, parks, and recreational facilities, ensuring that all your needs are met within close proximity.

General

Gas central heating
uPVC sealed unit double glazed windows and doors
Gross internal floor area - 81.8 sq.m./881 sq.ft.
Council Tax Band - A
Tenure - Freehold
Secondary School Catchment Area - Netherthorpe School/Springwell Community College (shared)

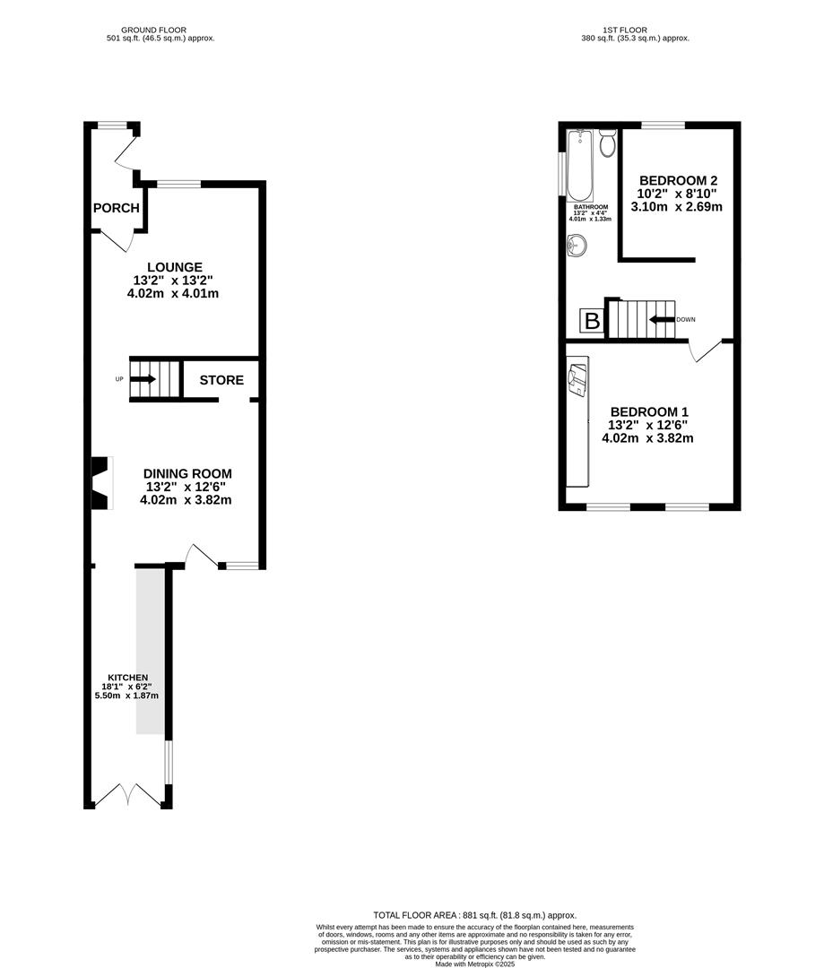
On the Ground Floor

A uPVC double glazed door opens into an ...

Entrance Porch

Fitted with laminate flooring and having a door giving access into the ...

Living Room (4.01m x 4.01m)

A good sized front facing reception room, fitted with laminate flooring and having a feature fireplace with an electric log effect stove.
This room also has some fitted storage.

Centre Lobby

With staircase rising to the First Floor accommodation.

Dining Room (4.01m x 3.81m)

A good sized reception room, fitted with laminate flooring and having a uPVC double glazed door giving access onto the rear of the property.
An opening leads through into the ...

Kitchen (5.51m x 1.88m)

Being dual aspect and fitted with a range of white wall, drawer and base units with complementary work surfaces and upstands.
Inset single drainer stainless steel circular sink with mixer tap.
Space and plumbing is provided for a washing machine, and there is also space for a freestanding cooker and space for an under counter fridge or freezer.
Laminate flooring.
uPVC double glazed French doors overlook and open onto the rear of the property.

On the First Floor

Landing

Bedroom One (4.01m x 3.81m)

A good sized double bedroom having two windows overlooking the rear of the property.
This room is fitted with laminate flooring and has a range of built-in wardrobes.

Bedroom Two (3.10m x 2.69m)

A front facing good sized single/small double double bedroom.

Bathroom

Being part tiled and fitted with a white 3-piece suite comprising of a panelled bath with folding glass shower screen and mixer shower over, pedestal wash hand basin and a low flush WC.
Downlighting.

Outside

There is a raised forecourt garden and a paved path leading to the front entrance door.

To the rear of the property there is an enclosed south facing garden with a small brick built garden store.


Location


Floorplan

Floorplan Floorplan Floorplan

EPC

EPC for Church Street, Staveley, Chesterfield

Chesterfield Estate Agent

23 Gluman Gate, Chesterfield S40 1TX

Similar Properties

Stanley Avenue, Inkersall, Chesterfield
For Sale

Stanley Avenue, Inkersall, Chesterfield

3 Bed Semi-detached house For Sale
Guide price £210,000
Lodge Walk, Inkersall, Chesterfield
For Sale

Lodge Walk, Inkersall, Chesterfield

2 Bed Detached bungalow For Sale
Guide price £265,000
Elliott Drive, Inkersall, Chesterfield
For Sale

Elliott Drive, Inkersall, Chesterfield

2 Bed Detached bungalow For Sale
Guide price £260,000