Medlock Road, Walton, Chesterfield

2 bedroom Detached bungalow for sale

£269,950

  • 2 bedroom
  • 1 bathroom
  • 1 reception

Key Features

  • Delightful Detached Bungalow in Cul-de-Sac Position
  • Fitted Kitchen with Integrated Cooking Appliances
  • Spacious 'L' Shaped Lounge/Diner
  • Two Double Bedrooms, both with Fitted Furniture
  • Modern Shower Room
  • Attractive Low Maintenance Gardens to both Front and Rear
  • Detached Single Garage & Ample Off Street Parking
  • NO UPWARD CHAIN
  • EPC Rating: D

Description

Summary

DETACHED BUNGALOW - CUL-DE-SAC POSITION - LOW MAINTENANCE GARDENS - DETACHED GARAGE

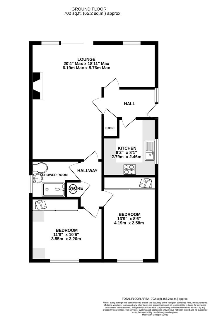
Occupying a cul-de-sac position and offered for sale with no upward chain is this delightful detached bungalow. Spanning an impressive 702 square feet, the property features a fitted kitchen with integrated cooking appliances, and a spacious 'L' shaped lounge/diner with patio door opening onto the attractive enclosed south west facing rear garden. With two double bedrooms and a modern shower room, this is an ideal home for a variety of buyers.

One of the standout features of this property is the ample parking space available, together with a detached single garage, a rare find that adds to the convenience of living in this lovely home.

Situated in a desirable location, this bungalow is close to local amenities, schools, and transport links, making it an excellent choice for those who value accessibility and community.

Don’t miss the chance to make this delightful property your new home.

General

Gas central heating (Sime Superior 60 Boiler)
uPVC sealed unit double glazed windows and doors
Gross internal floor area - 65.2 sq.m./702 sq.ft.
Council Tax Band - D
Tenure - Freehold
Secondary School Catchment Area - Brookfield Community School

A uPVC double glazed side entrance door opens into a ...

Entrance Hall

Fitted with LVT flooring and having a built-in storage cupboard.

Kitchen (2.79m x 2.46m)

Being part tiled and fitted with a range of wall, drawer and base units with under unit lighting, complementary work surfaces and upstands.
Inset two bowl sink with mixer tap and downlighting above.
Integrated appliances to include a microwave oven, fridge, freezer, electric oven and a 4-ring gas hob with stainless steel extractor over.
LVT flooring.

'L' Shaped Lounge (6.20m x 5.77m)

A spacious 'L' shaped living room which can be accessed via two doors from the entrance door.
This room has a feature fireplace with ornate surround, marble effect hearth and an inset electric fire.
LVT and carpet flooring.
A sliding uPVC double glazed patio door overlooks and opens onto the rear of the property.
A further door from this room gives access to the ...

Inner Hall

Having a built-in airing cupboard housing the hot water cylnder.

Shower Room

Having waterproof boarding to the wall and fitted with a 3-piece suite comprising of a walk-in shower enclosure with an electric shower, semi recessed wash hand basin with vanity unit below, and a concealed cistern WC.
Chrome heated towel rail.
Vinyl flooring.

Bedroom One (4.19m x 2.59m)

A good sized front facing double bedroom, having a range of built-in wardrobes along one wall.

Bedroom Two (3.56m x 3.20m)

A front facing double bedroom having a range of fitted bedroom furniture to include wardrobes, overbed storage, shelving and bedside cabinets.

Outside

To the front of the property there is an attractive garden laid with artificial turf and having a decorative gravel bed with shrubs and planted border. with rockery.

A block paved driveway provides ample off street parking and leads to a Detached Brick Built Single Garage.

A gate at the top of the driveway opens to the low maintenance rear garden, which again is laid with artificial turf and has a decorative pebbled side border interspersed with shrubs. There is also a garden shed.


Location


Floorplan

Floorplan Floorplan Floorplan

EPC

EPC for Medlock Road, Walton, Chesterfield

Chesterfield Estate Agent

23 Gluman Gate, Chesterfield S40 1TX

Similar Properties

Craglands Grove, Linacre Woods, Chesterfield
For Sale

Craglands Grove, Linacre Woods, Chesterfield

3 Bed Semi-detached house For Sale
Guide price £245,000
Charles Street, Brampton, Chesterfield
For Sale

Charles Street, Brampton, Chesterfield

3 Bed Semi-detached house For Sale
Guide price £165,000
Rednall Close, Holme Hall, Chesterfield
For Sale

Rednall Close, Holme Hall, Chesterfield

2 Bed Semi-detached bungalow For Sale
Guide price £62,500