Gas central heating (Alpha Combi Boiler)
uPVC sealed unit double glazed windows and doors
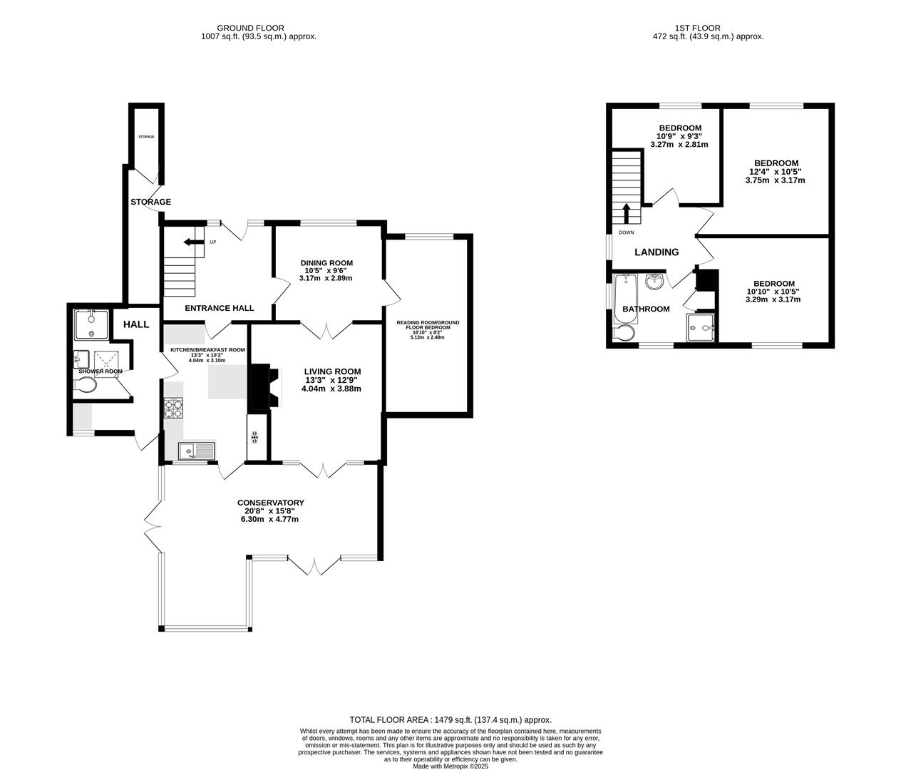
Gross internal floor area - 137.4 sq.m./1479 sq.ft.
Council Tax Band - C
Tenure - Freehold
Secondary School Catchment Area - Tupton Hall School
A composite front entrance door with uPVC double glazed side panel opens into an ...
Fitted with laminate flooring. A staircase with open balustrade rises up to the First Floor accommodation.
A front facing reception room fitted with laminate flooring.
Double doors give access into the living room, and a further door opens to the ...
A good sized and versatile front facing reception room which is currently being used as reading room but could also be used as a ground floor bedroom. The room is fitted with laminate flooring.
A good sized reception room, fitted with laminate flooring and having a feature painted brick fireplace with wood mantel and tiled hearth.
uPVC double glazed French doors give access into the ...
A lovely conservatory fitted with laminate flooring and having two sets of French doors which overlook and open onto the rear garden and patio.
A door from here gives access into the kitchen.
Being part tiled and fitted with a range of shaker style wall, drawer and base units with complementary work surfaces over, together with an island unit/breakfast bar with granite worktop.
Inset single drainer sink with mixer tap.
Integrated appliances to include an electric oven and 4-ring hob with extractor over.
Space is provided for an American style fridge/freezer, and there is also space and plumbing for a dishwasher.
Laminate flooring and downlighting.
A uPVC double glazed door gives access to the ...
Having space for a tumble dryer. A stable door gives access onto the rear of the property, and there is also 0n door giving access to the shower room and an opening to a utility area.
Being fully tiled and fitted with a white 3-piece suite comprising a shower cubicle with electric shower, wash hand basin and a low flsuh WC.
Chrome heated towel rail.
Tiled floor and skylight window.
Having space and plumbing for a washing machine.
With loft access hatch.
A good sized front facing double bedroom fitted with laminate flooring.
A good sized rear facing double bedroom.
A good sized front facing single bedroom fitted with laminate flooring.
A dual aspect room, being part tiled and fitted with a white 4-piece suite comprising a panelled bath with bath/shower mixer tap, shower cubicle with electric shower, pedestal wash hand basin and a low flush WC.
Vinyl flooring.
Double gates to the front of the property open onto a tarmac driveway providing off street parking, and there is also a corner lawn with hedged boundaries. A door gives access to a good sized and useful brick built store.
The enclosed east facing rear garden is predominantly laid to lawn and has a paved patio, decorative gravel patio/seating area with pagoda and a pond. There is also a garden shed.